MANNHEIM DAS HERZSTÜCK DER WIRTSCHAFTSSTARKEN METROPOLREGION RHEIN-NECKAR
Lage
6. OG – 14. OG
2. OG – 5. OG
1. OG
EG
Stacking Plan
verfügbare Mietflächen
Lage
Fläche
verfügbar
Nutzung
Büro 7.OG, Turm 518 m² sofort
Handel
Büro
Hotel
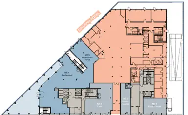
Erdgeschoss Eingang Hotel/Lobby | orange Gastronomie Zufahrt Tiefgarage
Sockelbau 1. – 5. OG Hotel | orange Büro | 3 Mieteinheiten je Etage möglich
Turm bis 14. OG Büro | 1 Mieteinheit je Etage möglich
Moderner Gebäudestandard Büroimmobilie mit hoher Flächeneffizienz Kompatibilität von New-Work- Konzepten mit einer ausreichenden Anzahl an Sozialflächen Effiziente und flexible Grundrisskonzepte mit Berücksichtigung von Barrierefreiheit Duschen/Umkleiden im Gebäude
Energieeffizienz Gebäudebestand mit guter Energieeffizienz Primärenergiebedarf der Immobilie soll bis 2030 höchstens 120 kWh/m²/a betragen Mobilitätskonzept mit Lademöglichkeiten für Elektro- Autos bereits vorhanden Einsatz von regenerativen Energiequellen, u.a. Beziehung von Fernwärme
Nachhaltiger Standort Etablierter und wirtschaftsstarker Standort Sehr gute Anbindung an das ÖPNV-Netz Zukunftsfähige digitale Infrastruktur Ausreichend Fahrradstellplätze im Gebäude Nähe zu Grün- und Parkanlagen gegeben
Dr. Wolfram Lässig Head of Assetmanagement +49 40 238312250 wolfram.laessig@fondsgrund.de
Volker Lorenz Head of Portfoliomanagement +49 40 238312260 volker.lorenz@fondsgrund.de
Kontakt
Vermietung Jones Lang LaSalle SE L14, 11 (Kaiserring) 68161 Mannheim Herr Konstantinos Krikelis Director Office Leasing Mannheim +49 621 3999833-0 konstantinos.krikelis@eu.jll.com
Mannheim, Glücksteinallee 1-7 „Die beste Adresse Mannheims“ Nutzung Büro, Handel, Hotel Fläche 19.200 m² Risikoklasse Core
MANNHEIM DAS HERZSTÜCK DER WIRTSCHAFTSSTARKEN METROPOLREGION RHEIN- NECKAR
Mannheim, Glücksteinallee 1-7 Nutzung Büro, Handel, Hotel Fläche 19.200 m² Risikoklasse Core
Lage
6. OG – 14. OG
2. OG – 5. OG
1. OG
EG
Stacking Plan
Handel
Büro
Hotel
Erdgeschoss Eingang Hotel/Lobby | orange Gastronomie Zufahrt Tiefgarage
Sockelbau 1. – 5. OG Hotel | orange Büro | 3 Mieteinheiten je Etage möglich
Turm bis 14. OG Büro | 1 Mieteinheit je Etage möglich
verfügbare Mietflächen
Lage
Fläche
verfügbar
Nutzung
Büro 7.OG, Turm 518 m² sofort
Moderner Gebäudestandard Büroimmobilie mit hoher Flächeneffizienz Kompatibilität von New- Work- Konzepten mit einer ausreichenden Anzahl an Sozialflächen Effiziente und flexible Grundrisskonzepte mit Berücksichtigung von Barrierefreiheit Duschen/Umkleiden im Gebäude
Energieeffizienz Gebäudebestand mit guter Energieeffizienz Primärenergiebedarf der Immobilie soll bis 2030 höchstens 120 kWh/m²/a betragen Mobilitätskonzept mit Lademöglichkeiten für Elektro-Autos bereits vorhanden Einsatz von regenerativen Energiequellen, u.a. Beziehung von Fernwärme
Nachhaltiger Standort Etablierter und wirtschaftsstarker Standort Sehr gute Anbindung an das ÖPNV-Netz Zukunftsfähige digitale Infrastruktur Ausreichend Fahrradstellplätze im Gebäude Nähe zu Grün- und Parkanlagen gegeben
Dr. Wolfram Lässig Head of Assetmanagement +49 40 238312250 wolfram.laessig@fondsgrund.de
Volker Lorenz Head of Portfoliomanagement +49 40 238312260 volker.lorenz@fondsgrund.de
Kontakt
Vermietung Jones Lang LaSalle SE L14, 11 (Kaiserring) 68161 Mannheim Herr Konstantinos Krikelis Director Office Leasing Mannheim +49 621 3999833-0 konstantinos.krikelis@eu.jll.com